
What are as-built retail surveys?
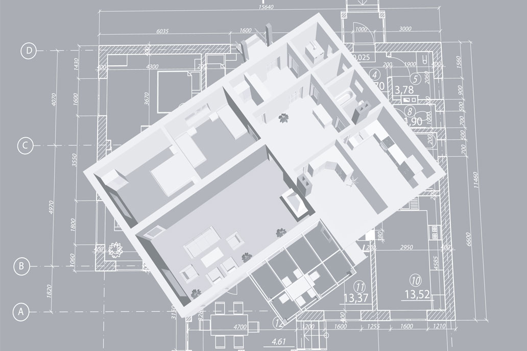
The purpose of an as-built retail survey is to capture the building structure, architecture, and MEP for record purposes and verify against existing or proposed construction.
In BIM it is often a contractual requirement to confirm the as-existing condition of a building. This is to verify that it has been constructed in accordance with the brief, is constructed in adherence to the proposed design or to provide an accurate record of the as-completed building and services for facilities management and planned maintenance.
Who we work with
Undertake as-built surveys at any stage in your project
As-built retail surveys or ‘as-existing’ measured building surveys can be undertaken at any point in your project including:
- initial design phase
- pre-construction
- during construction
- post practical completion or
- post occupancy
Avoid project delays with our swift process to get accurate as-built retail surveys
When on site, our surveyors use HD 3D laser scanners to capture site data swiftly and accurately so you can avoid project delays, extra costs and increased workload.
For each day our surveyors spend on-site capturing data, they are likely to spend 2-3 days back in the office registering the point cloud, undertaking a verification against either existing data or proposed drawings and 3D models, or preparing new information.
Alternatively, a new 3D Revit building model or 2D plans, sections and elevations showing the exact dimensions and layout of the completed building, can be prepared from the data.
Other projects that were delivered swiftly include:
- 87,000 sqm scanned in 5 weeks across 17 bus depots
- 60,000 sqm surveyed across 6 buildings in six weeks
- 255 surveys in 25 European countries over an 18 month period
The relationship between CADS and the Watches of Switzerland Group is critical as CADS has been the single supplier of all our KPI area (m2) and linear space (mm) data for over 10 years.
CADS was a market leader in 2012 and still is now. CADS has been our survey supplier of choice because they provide a fantastic, reliable, and quick responsive service. In terms of working together in the future, I'm very optimistic. I'm looking forward to the next 10 years!
Related reading
Delivering a decade of as-built survey data for luxury retailer the Watches of Switzerland Group
For over a decade, we have been the retail survey partner of choice for luxury watch retailer the Watches of Switzerland Group, consistently providing efficient and effective as-built survey data of their extensive portfolio of UK stores.
Read case studyWorking collaboratively to industry standards with technical survey experts
Working in accordance with relevant professional and industry standards, together with our own exacting ISO 9001 certified processes, we deliver accurate data that you can depend upon.
By recognising the importance of good communication from the very first point of contact, we understand the full scope of your project to provide you with expert advice. This results in you receiving the best service and a practical cost-effective output for the project in the present and in the future.
Ready to get your project started?
Complete complex retail construction and fit-out projects with ease and satisfaction by contacting our CADS Surveys experts. Simply fill in the form below and a member of our team will get in touch with you.
Complementary services to optimise your retail space
Our multi-disciplinary services help you transform and manage your store environments with confidence