
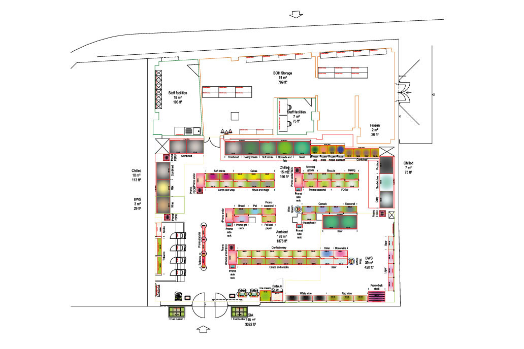
Capturing accurate information about your store estate, the category layouts, fixtures and planograms
Our surveyors tailor the contents of your retail store surveys to your project requirements and budget.
Working throughout the UK and Europe, we obtain the information you need for projects of any scale. Whether at a single location or a multitude of sites.
Our surveyors use both digital-laser and traditional survey methods as appropriate. We can deliver your information as 2D CAD plans, 3D models or a Matterport digital twin.
Who we work with
Store surveys tailored to your specific needs
We understand the importance of cost-effectively capturing the information you need. We will work with you to agree the specification to achieve the desired balance in cost, quality and time. Whether you require the information for construction, equipment and space audits or project roll-outs.
Architectural retail surveys
Have you recently purchased a site and are planning construction works or are altering a site you already own? We can quickly and accurately capture detailed measurements in a laser survey. Our experienced team deliver the data to your project team’s desktop, enabling them to start work immediately.
Need retail store surveys?
Discuss your project with one of our retail store surveys experts. We create 2D CAD plans, 3D models or a Matterport digital twin.
Get in touch
This intensive survey programme for Polo Ralph Lauren involved 255 concession surveys in 25 European countries in 18 months. We completed the survey and delivered the data within two weeks of the commission.
European-wide retail concession surveys for Polo Ralph Lauren
CADS partnered with Polo Ralph Lauren to support their European concession development. Over 18 months, CADS conducted 255 surveys in 25 European countries, ensuring the successful expansion and alignment of their stores across the region
Read case study
Retail project rollout surveys
CADS has a wealth of experience in delivering estate-wide surveys. This supports our clients when they are rolling out internal or external changes across their store portfolio.
A project roll-out survey provides the site-specific information your team needs to enable the delivery of the project within multiple stores across your estate.
Choosing the best retail store surveys solution for your needs
We build the survey specification around your individual requirements. Our surveyors can help you develop an appropriate specification document for your project. Your needs will be discussed in-depth so that we can understand what data you require now and what data will benefit you in the future.
Our teams have deep experience in processing scanned architectural data. The data can come from our laser scanners to your computer desktop within hours of a survey.
If you have a retail survey project on the horizon, please get in touch to find out how we may help you.
Audit surveys to verify existing plans
An internal audit survey can be used to verify the accuracy of any existing instore information such as space, equipment, fixtures and commodities. We update your floorplans to include the very latest data ready for use in your store planning projects. Whether you are planning a major intervention, a seasonal range review or rebalancing existing space allocations.
Managing asset tagging and plans
We use CAD drawings to help you keep an accurate record of property plans and an asset management record as a single source of truth for all your locations – as your estate grows and changes.
An accurate Matterport asset record serves as a Digital Twin of an occupied building, enabling tagging of mechanical, electrical, and plumbing services for Facilities Management and Planned Maintenance. This provides a cost-effective alternative to a full 3D Revit® model for ongoing management and maintenance.
We support a wide range of clients including the NBS (Nationwide Building Society) Property & Corporate Services Department and Watches of Switzerland Group.
How can we help you?
Ready to discuss retail store surveys and speak to an expert? Simply fill in the form and one our of our team will get in touch with you.
Complementary services to optimise your retail space
Our multi-disciplinary services help you transform and manage your store environments with confidence